コンシェリア日本橋
物件情報
周辺施設
コンシェリア日本橋 の物件概要
【マンション】※地図上に表示される物件の位置は付近住所に所在することを表すものであり、実際の物件所在地とは異なる場合がございます。
コンシェリア日本橋の空室情報
(株)アクアリアルエステート > (賃貸)地域から探す > 中央区 > コンシェリア日本橋
コンシェリア日本橋
物件情報
周辺施設
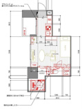
コンシェリア日本橋 の物件概要
【マンション】※地図上に表示される物件の位置は付近住所に所在することを表すものであり、実際の物件所在地とは異なる場合がございます。
コンシェリア日本橋の空室情報

コンシェリア日本橋に関するこだわり条件から探す